Logo MFA, Museum für Abgüsse Klassischer Bildwerke
Logo MFA, Museum für Abgüsse Klassischer Bildwerke
  • Suche

Main navigation

  • Ihr Besuch
  • Antike für Alle
  • Digital
  • Museum
Logo MFA, Museum für Abgüsse Klassischer Bildwerke
  • DE
  • EN

Main navigation

  • Ihr Besuch
  • Antike für Alle
  • Digital
  • Museum
Direkt zum Inhalt

Erdgeschoss

Angetrieben durch Drupal
RSS feed abonnieren
Startseite Museum für Abgüsse Klassischer Bildwerke München


Erdgeschoss


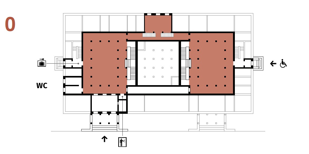
Gezeichneter Plan des Erdgeschosses

Der Rundgang im Erdgeschoss beginnt im ersten Lichthof mit der hellenistischen Kunst. Von dort geht es zum Gartensaal, in dem römische Kunst ausgestellt ist. Der dritte große Bereich befindet sich im zweiten Lichthof und ist der frühen griechischen Kunst der Archaik und Klassik gewidmet.

Mehr zu den Haupträumen im Erdgeschoss erfahren Sie auf den Seiten zu unserem Rundgang: 1. Lichthof, Gartensaal und 2. Lichthof.

Verschiedene Statuen
Die hellenistische Kunst im ersten Lichthof

Erdgeschoss

Angetrieben durch Drupal
RSS feed abonnieren
Startseite Museum für Abgüsse Klassischer Bildwerke München

Main navigation

  • Ihr Besuch
  • Antike für Alle
  • Digital
  • Museum

User account menu

  • Anmelden


Logo MFA, Museum für Abgüsse Klassischer Bildwerke
 
Logo Bayern barrierefrei
Logo Kunstareal München

Museum für Abgüsse Klassischer Bildwerke München
Haus der Kulturinstitute
Katharina-von-Bora-Straße 10
80333 München
Google Maps

Kontakt
Tel. 089 / 289 27 - 690 und - 695
Fax 089 / 289 27 680
E-Mail: info@abgussmuseum.de

Gruppen / Führungen / Kindergeburtstage
Öffentliche Führungen für alle: 
Eintritt frei

Anmeldungen von Gruppen sowie Buchungen von Führungen oder Kindergeburtstagen unter: info@abgussmuseum.de

Führungen in einfacher Sprache

Öffnungszeiten
Montag - Freitag 10 - 20 Uhr
Samstag/Sonntag/Feiertag geschlossen

Eintritt frei

Folgen Sie uns auf:
Instagram
Youtube
Newsletter

Logo von 'Bayern barrierefrei' mit vier Piktogrammen, die barrierefreie Zugänglichkeit symbolisieren. Unter den Piktogrammen befindet sich das Signet 'Bayern barrierefrei' und darunter das Staatswappen von Bayern.
Logo des Kunstareals, bestehend aus dem geschriebenen Namen 'Kunstareal München'.
© 2026 Museum für Abgüsse Klassischer Bildwerke München

Fußzeile

  • Login
  • Barrierefreiheit
  • Datenschutz
  • Haftungsausschluss
  • Impressum